Categories:
- Sanitation
Status:
Start Date:
Cost:
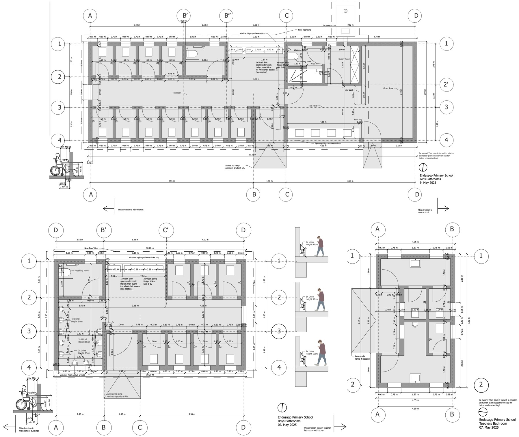
New Bathrooms for Endasago Primary School
As with many rural schools in Tanzania, Endasago Primary had crumbling bathrooms that were unsanitary. Floors could not be adequately sanitized creating a breeding ground for illness. Students and teachers deserve and need sanitary bathrooms to provide a safe and supportive learning environment at school.
Karimu is working with the local community to build boys, girls, and teachers bathrooms together with an appropriate sewage treatment system for the 376 students and 10 teachers at Endasago Primary. The construction will include urinals and squat toilets as appropriate by gender, seated toilets with ramp accessibility for disabled students, and menstrual accommodations including showers, washing sinks, clothes lines, and an incinerator for girls.
Karimu requires that schools are meeting their key metrics to be eligible to receive construction projects including student attendance and performance targets, hygiene training, handwashing stations with soap, menstrual pads, and student meals. Subsequent to construction additional metrics including self-identified problems and average time to resolution are added to assure sustainability of the investment.
The community is contributing to the project via labor for clearing the land and digging the foundation, providing stones and rebar for the foundation, and metal roofing sheets for the new buildings.
During the 2025 volunteer trip, Karimu volunteers worked with the community to dig the foundation.
Benefits:
-
Improved health for students and teachers
-
Better learning conditions
Cost:
-
Karimu cost : $59,359
-
Community cost and/or contribution: $4,951
